BAUDOIN
FORT
Architecture
Westwood Terrace
Harrison
Renovation
Terrace
Landscape
Client
Private at GPIDC
Designer
Baudoin
Software
AutoCAD, Sketchup, Keyshot, Photoshop
Description
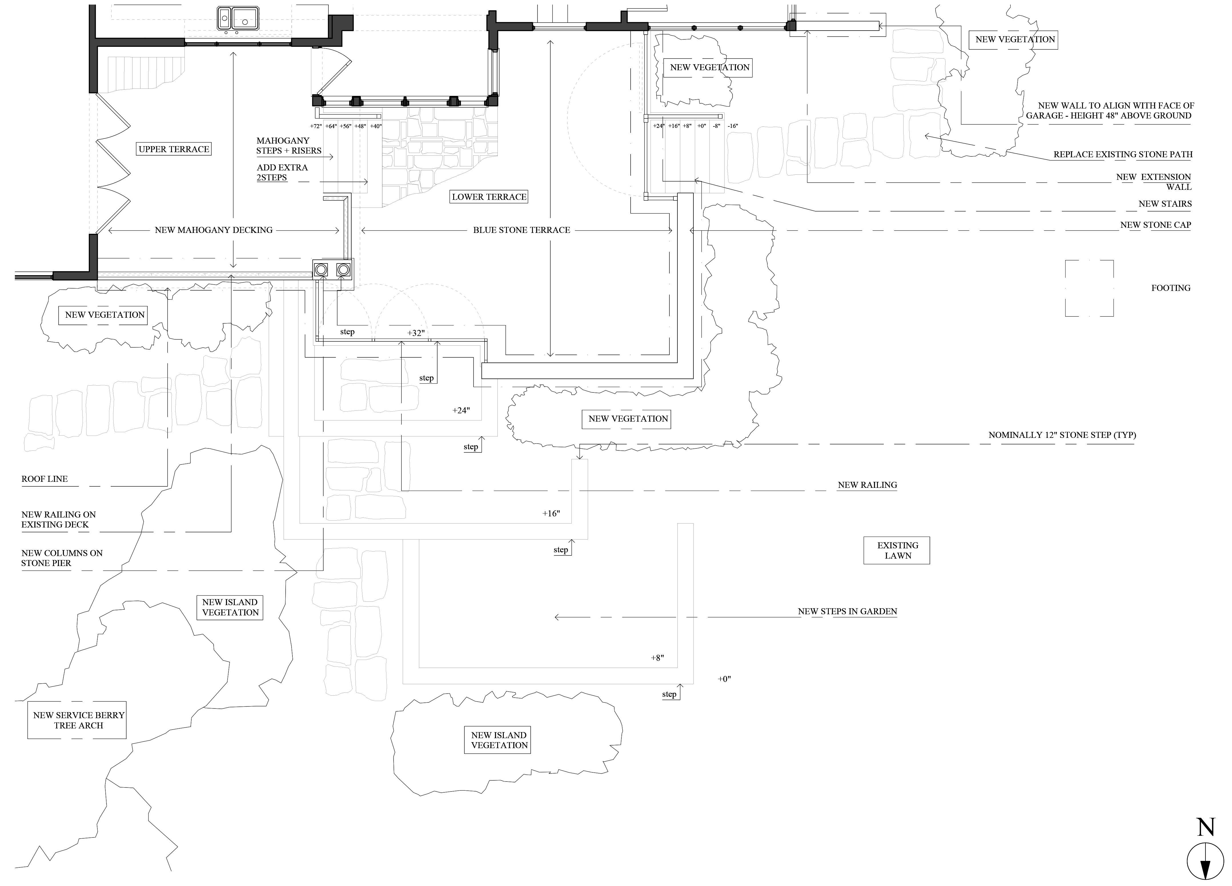
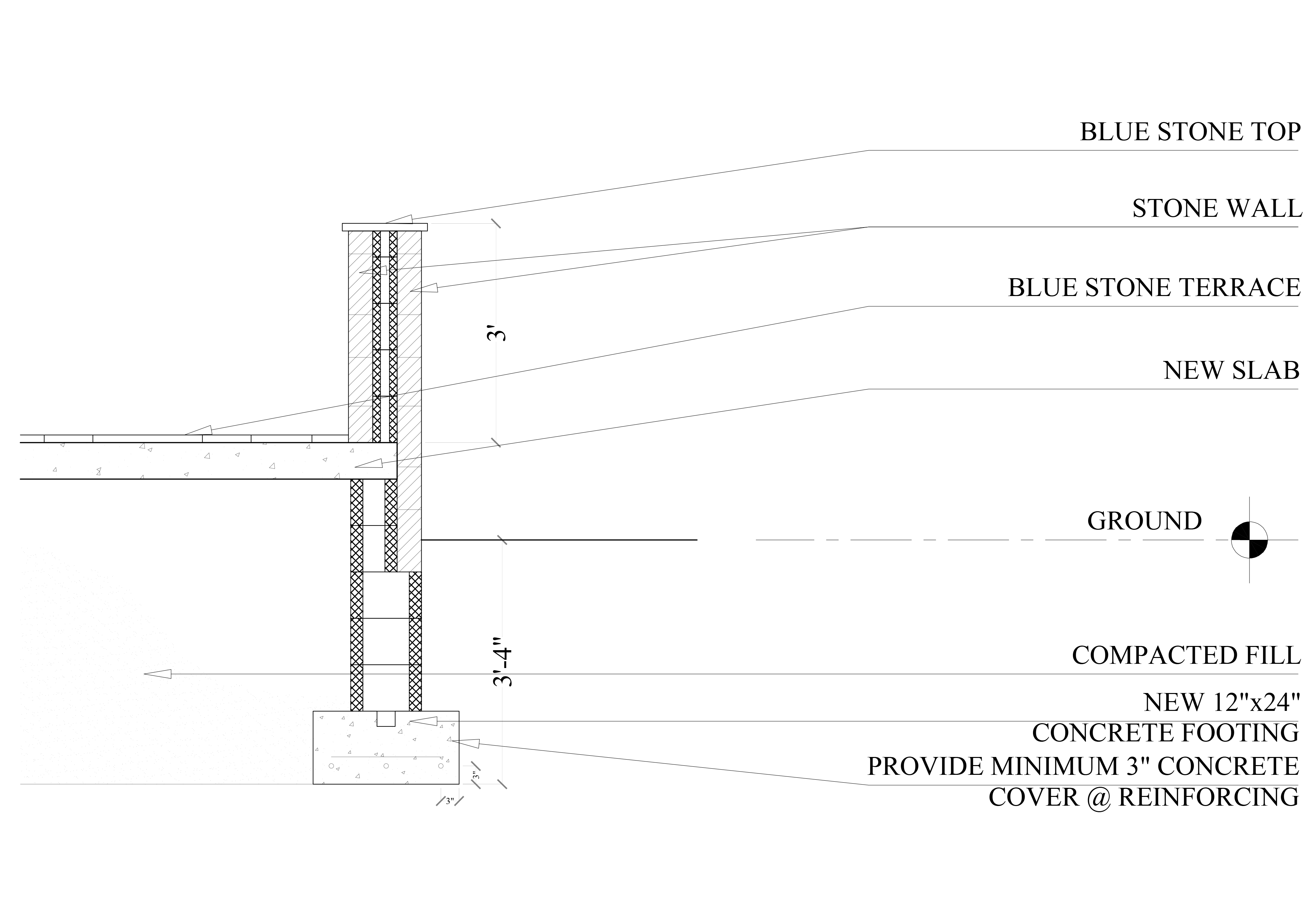
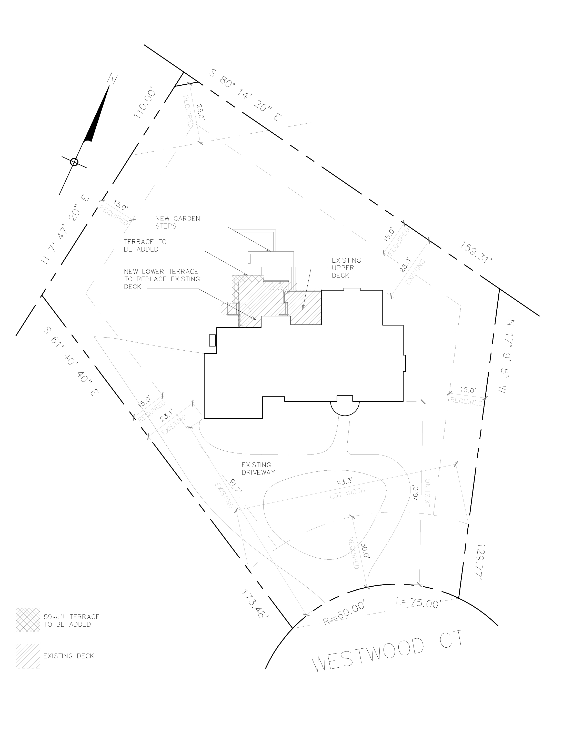
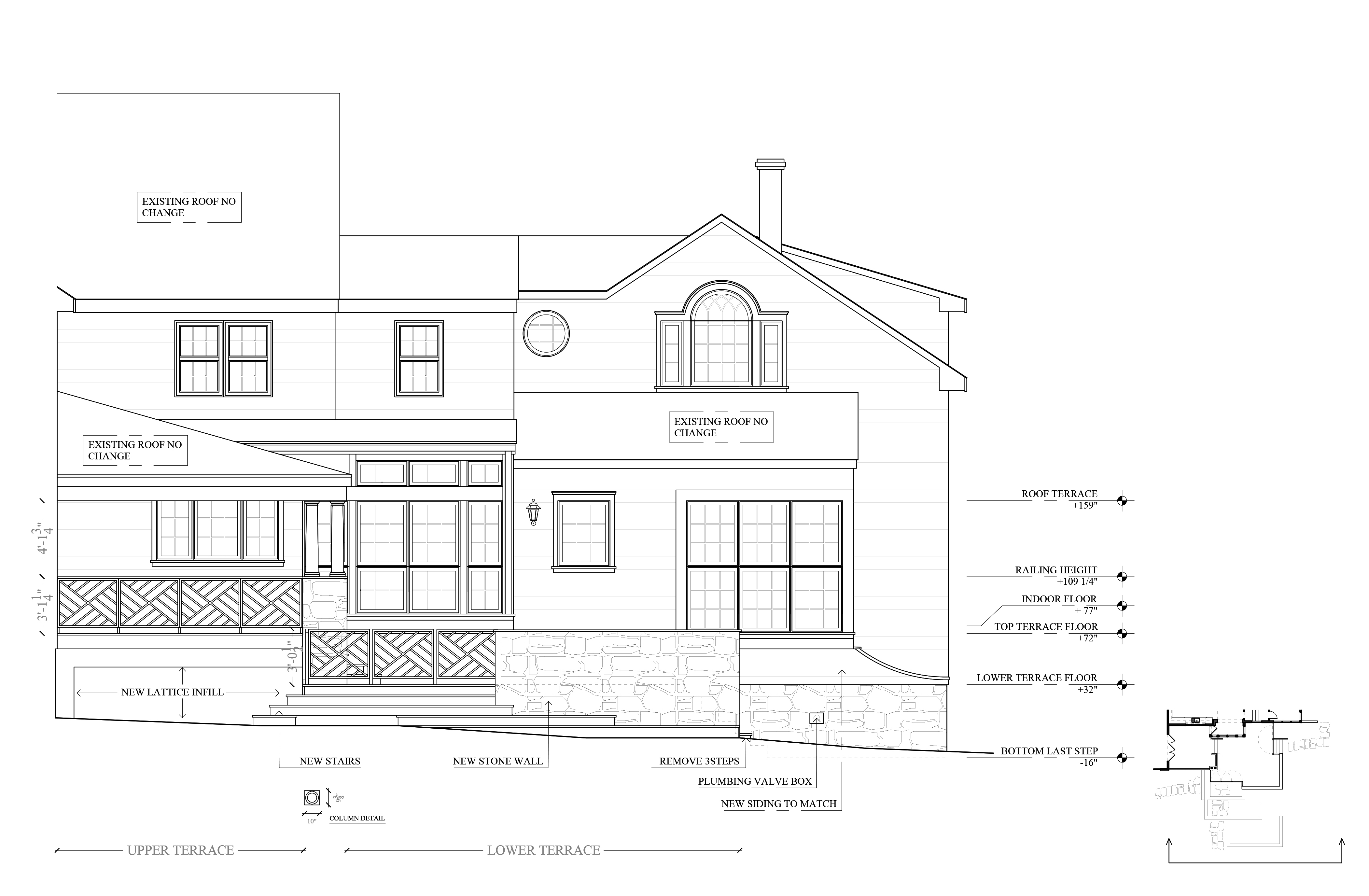
We extended the existing terrace to include covered and uncovered areas, offering versatile spaces for relaxation. A new stone wall and metal railing provide a secure enclosure for the owners’ dogs, while natural steps with grass between the treads enhance the garden’s access and blend harmoniously with the landscape. The redesigned garden complements the new outdoor living spaces, creating a seamless connection between architecture and nature.