BAUDOIN
FORT
Architecture
29E64ST
New York
Apartment
Renovation
Interior Design
Client
Private at GPIDC
Designer
Baudoin
Software
AutoCAD, Sketchup, V-Ray
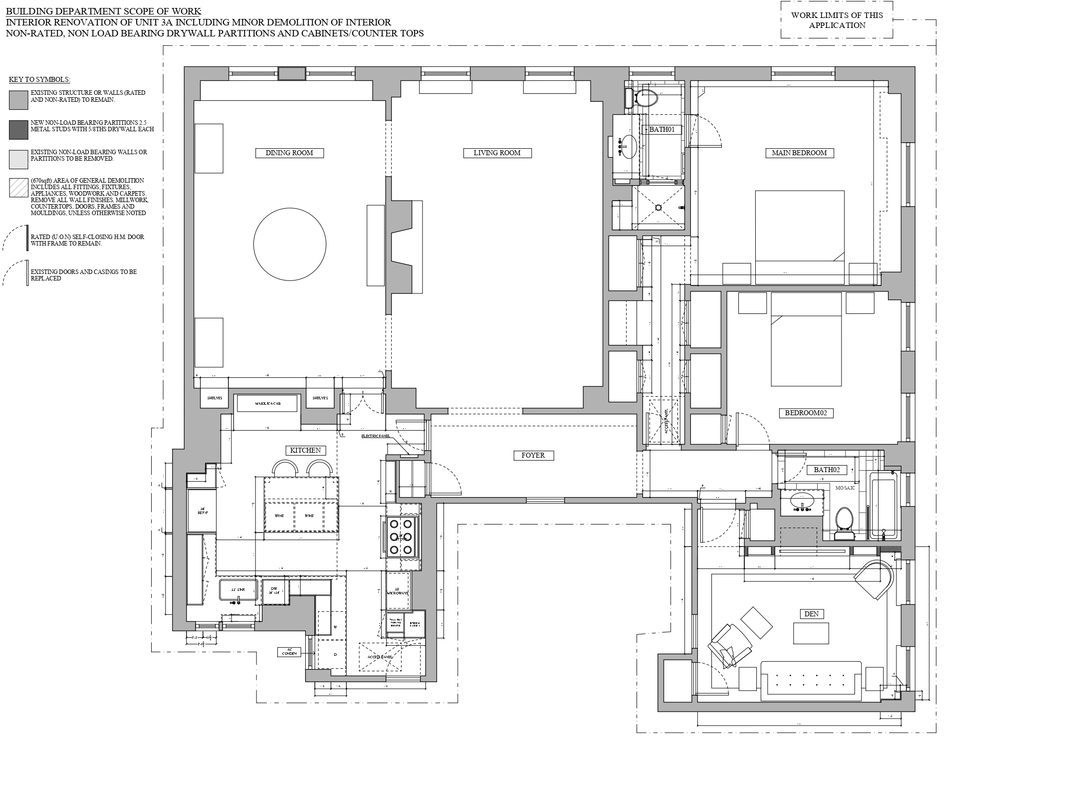
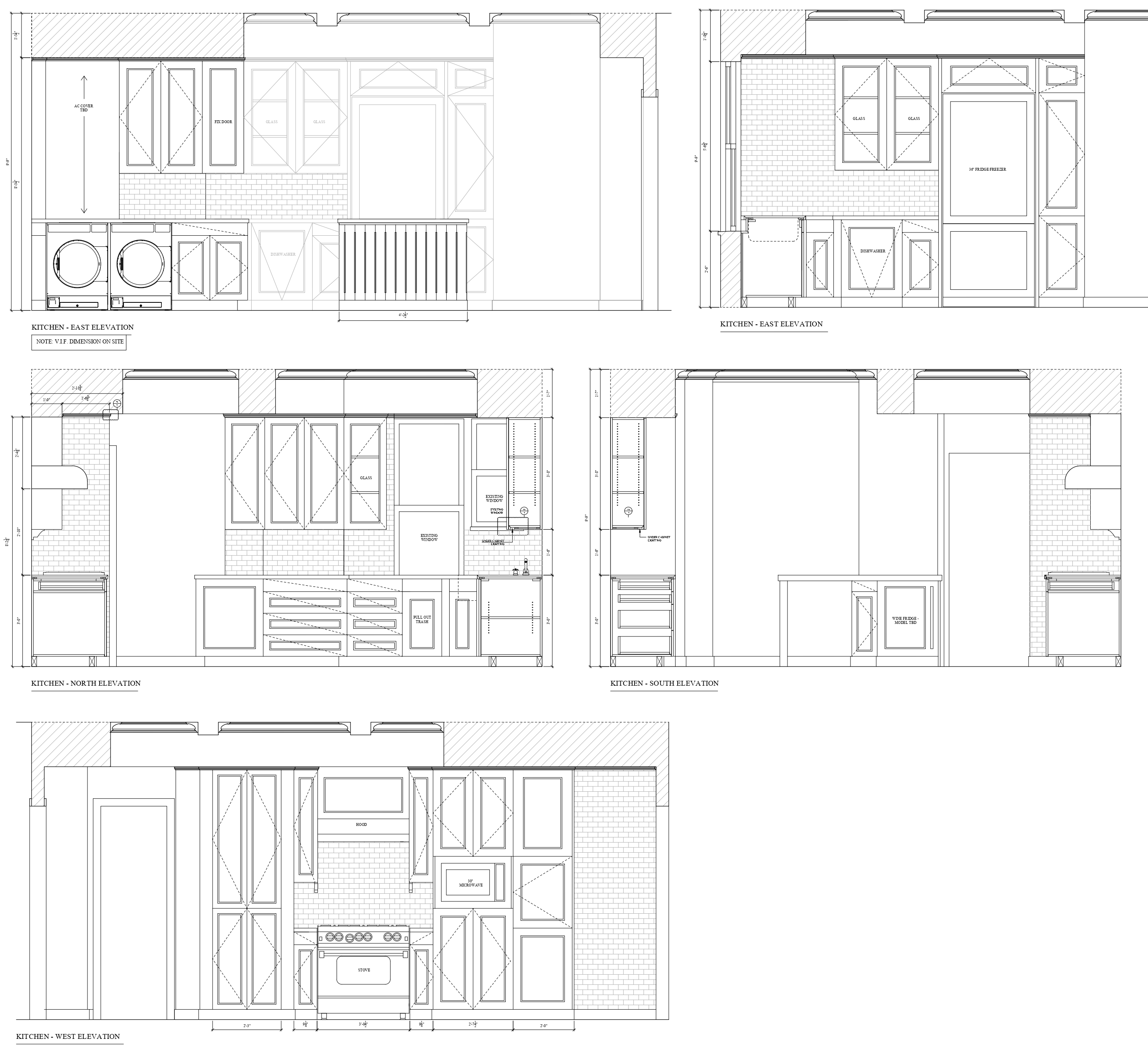
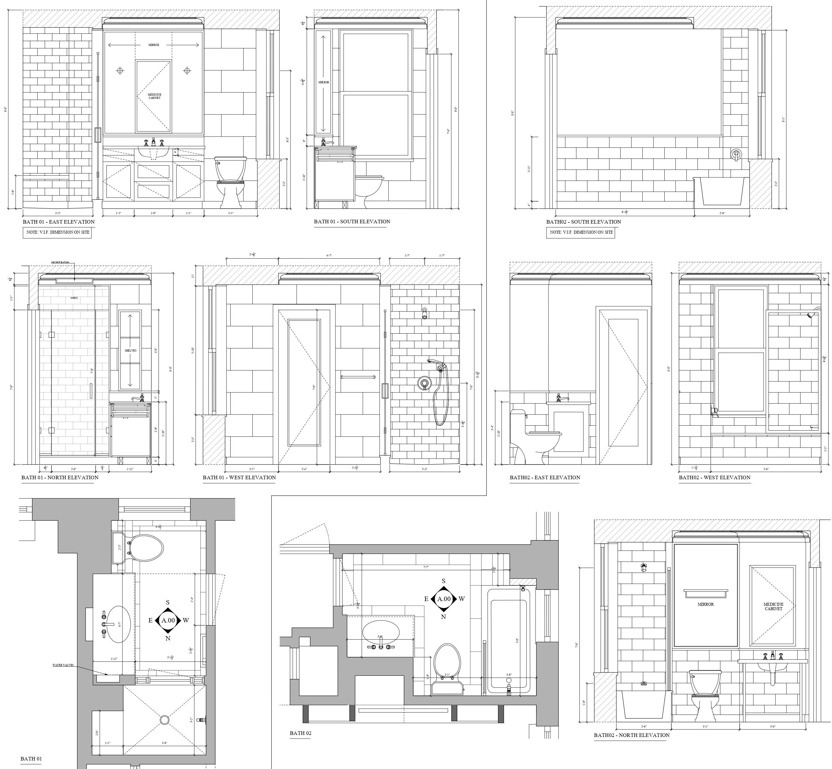
Description
This renovation focused on updating the kitchen, bathroom, and den with a modern and elegant design approach. The project emphasized clean lines, refined finishes, and functional spaces to create a sophisticated living environment.